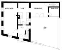
Umbau und Sanierung eines ehemaligen Herbergshauses
2004 - 2005 München-Giesing